Nous travaillons sur des projets divers et variés :
Neuf, Extension, Restructuration, Réhabilitation, Rénovation énergétique, ...
Particulier, Professionnel, Entité publique, ...
Habitation, logements individuels ou collectifs, Commerce, Espaces Médicaux, Bureaux, Séniors, Enfance, Scolaire, Périscolaire, Loisirs-culture Petits ou grands projets nous sommes à l’écoute de vos besoins et sommes là pour vous conseiller.
Sont proposées à la carte, selon vos besoins :
L’expertise technique, les diagnostics, les conseils, les faisabilités, la conception architecturale, la construction et suivi de chantier
La société d'architecture IMAGINE profite d’une large expérience en termes de construction aussi bien dans le domaine du neuf qu’en réhabilitation lourde, ou en site occupé.
Nous fonctionnons sur une méthode de coopération, d’échanges des savoirs et de communication. Nous concevons ainsi nos projets avec respect du contexte environnemental et/ou historique, mais aussi avec conscience des usages et des enjeux, et du budget client.
Une réponse conceptuelle et économique est ainsi apportée au client lors de nos études.
N’hésitez pas à vous rapprocher de notre équipe, pour un 1er échange
Phase Concours - Construction de bureaux
Construction de bureaux privés, hall d'accueil lumineux, zone détente en mezzanine, salle de réunions, parking privé.
Maitre d'ouvrage : PRIVE
Surface : 1 000m² de bureaux (300m² en RDC + 700m² en R+1)
Mecs littoral - Sangatte (62) Médico social éducatif
Construction d'une Maison de l'Enfance à Caractère Social
Réalisation d'un pôle administratif, pôle santé, Hébergements pour 65 enfants de 6 à 18 ans, service pédagogique, locaux techniques spécifiques
Maitre d'ouvrage : La Vie Active
Surface : 3 500m²
18 logements individuels - Avion (62)
Construction d'un quartier de 18 logements individuels locatifs (3 T3 11 T4 3 T5)
Le projet a pour objectif de redonner vie au quartier de la République
Maitre d'ouvrage : La Foncière Logement
Maître d'ouvrage délégué : Territoires 62
Surface : 1 696m²
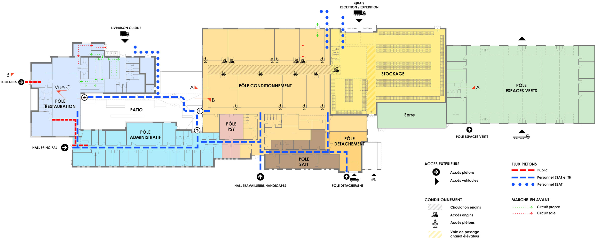
ESAT de la Gohelle - Hersin Coupigny (62) - Médico social éducatif
Maitre d'ouvrage : La vie Active
Surface : 4 521m²
Construction d'un Etablissement de Services d'Aide par le Travail
Création de bureaux administratifs, locaux médico-sociaux, espaces de travail pour personnel avec handicape, locaux de stockage, pôle restauration/Self.
23 logements individuels - Bully les Mines (62)
Construction d'un quartier de 23 logements individuels en accession à la propriété (3 T3 18 T4 2 T5)
Maitre d'ouvrage : Coopartois
Surface : 2 580m²
I.M.E Louis Flahaut - Liévin (62) - Médico social éducatif
Construction d'un Institut Médico Educatif
Création de salles de classes et ateliers professionnels pour 2 sections de 150 élèves, création de bureaux administratifs, pôle santé, pôle restauration, serre d'application.
Maitre d'ouvrage : La vie Active
Surface : 4 000m²
Bureaux professionnels et habitations - Liévin (62)
Construction de bureaux professionnels pour un bureau d'étude VRD
et 2 logements individuels locatifs TYPE T3
avec deux accès et stationnements distincts.
Maitre d'ouvrage : SCI privée
Surface : 433m²
Crèche inter-entreprises - Liévin (62)
Construction d'une crèche inter-entreprises pouvant accueillir 46 enfants
Maitre d'ouvrage : Privé
Surface : 200m²
Construction d'un garage bi-marques Peugeot / Citroën - Liévin (62)
Construction d'un garage, hall d'accueil, bureaux, ateliers, espace de vente
Maitre d'ouvrage : privée
Surface : 2086m²
Construction d'un garage Peugeot - Auchy les mines (62)
Construction d'un bâtiment dédié à la vente de véhicules.
Maitre d'ouvrage : privée
Surface : 700m²
Maison Individuelle - Lens (62)
Construction d'une maison individuelle contemporaine en hypercentre
Maitre d'ouvrage : privé
Surface : 200m²